***RÉSIDENCE PRINCIPALE UNIQUEMENT***
Vente sur plans
Début des travaux en 2024
Livraison fin 2025
La résidence Masters C est une nouvelle promotion de Haut standing composée de 5appartements spacieux de 4.5 pcs à proximité du coeur de la station de Crans-Montana.
Avec une architecture complètement en harmonie avec le décor dans lequel elle s'érige, cette construction offre des espaces généreux, une luminosité maximale et une tranquillité absolue de par son emplacement en lisière de forêt.
Sa localisation (Route du Golf) et son nom font références à l'Omega European Masters, une des plus prestigieuses compétitions de golf disputées sur sol européen.
La résidence Masters C est le lieu idéal pour profiter à la fois des plaisirs d'une grande station de ski avec ceux d'un des meilleurs spots pour le golf !
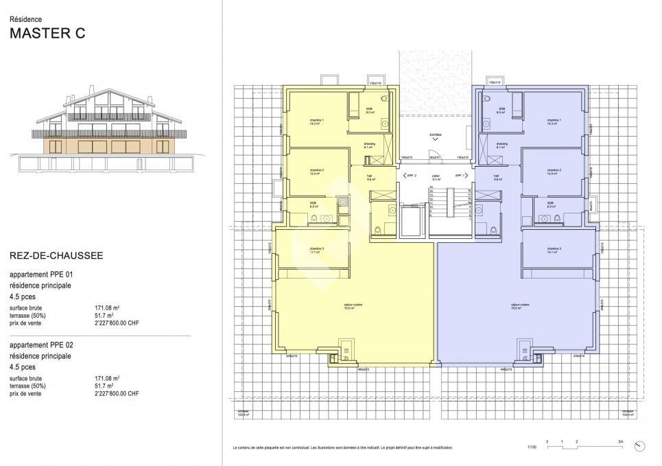
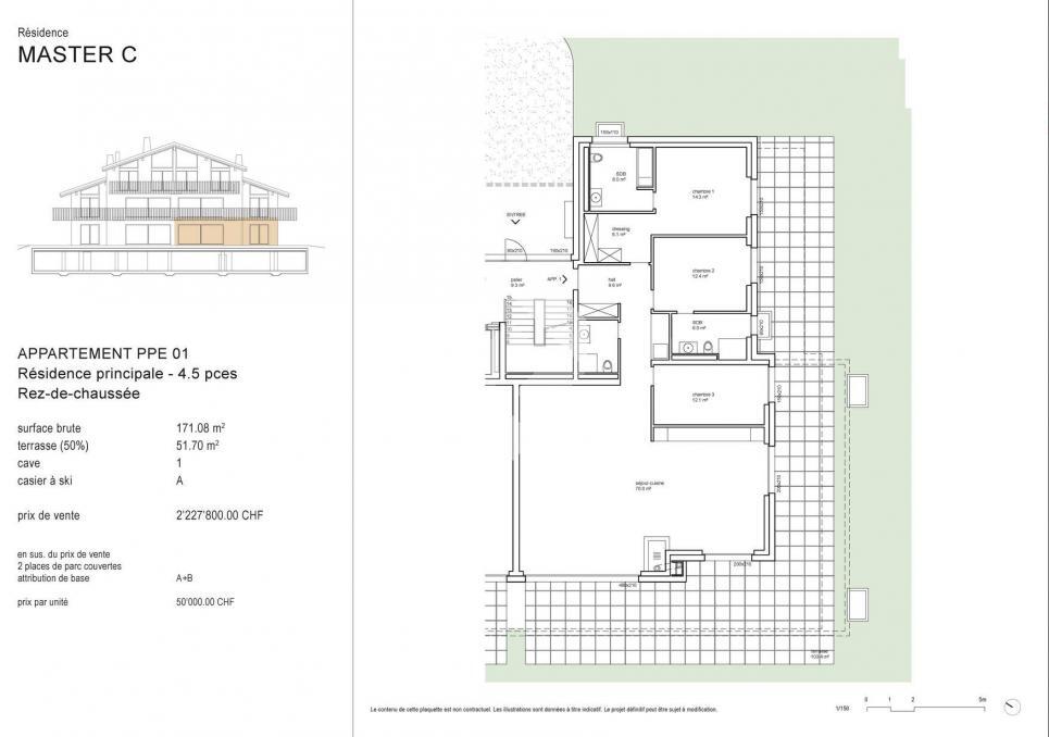
Cet appartement situé en rez-de-jardin se compose de la manière suivante :
Surface habitable brute : 171.08 m2
Terrasse : 103.40 m2
Surface de vente brute : 205 m2
- Grand hall d'entrée de 9.60 m2 avec penderie
- WC visiteur avec lavabo
- Suite parentale de 14.30 m2 avec salle de bain privative : Baignoire, WC, lavabo et fenêtre
- Chambre 2 de 12.40 m2
- Chambre 3 de 12.10 m2
- Salle de bain N°2 avec douche, WC, lavabo et fenêtre
- Cuisine équipée ouverte sur salon de 70 m2 avec accès terrasse
Une cave et un casier à ski accompagnent cet appartement
2 places de parking couvertes attribuées : CHF 50'000.-/unité en sus
CARACTÉRISTIQUES :
- Chauffage au sol
- Velux en sapin
- Isolation périphérique
- Cheminée vitrée
- Décors en pierres naturelles
- Stores électriques
- Cave et casier à ski
- Douche & Baignoire
- Ascenseur aux normes des handicapés
- Interphone
- Menuiserie intérieure en sapin
- Parquet dans les chambres
PROXIMITÉS :
- Arrêt de bus à 150 m
- Golf Club à 1500 m
- Centre de la station de Crans-Montana à 2000 m
- Télécabine à 2500 m
PARKING :
Places de parc visiteurs extérieures
Place de parc intérieure : CHF 50'000.- en sus
Plaquette de vente sur demande
Tous les documents techniques sont remis lors de rdv sur place ainsi que la présentation des budgets alloués.
Chez nous, la curiosité est un joli défaut ! Appelez- nous pour une visite
Cyril : + 41 79 464 11 35
**Tous les lots disponibles sur Berra-immobilier.ch**
Votre recherche
Appartement à Crans-Montana
Livraison fin 2025
Crans-Montana
Vendu
205 m²
4.5
Descriptions
Caractéristiques
Descriptif
Liste des objets
Immeuble
Référence
Lot
Type
Prix
Statut
Immeuble
Référence
Lot
Type
Pièces
Étage
Prix
Statut
Immeuble
Référence
Lot
Type
Pièces
Étage
Surface habitable
Prix
Statut
Immeuble
Référence
Lot
Type
Pièces
Étage
Surface habitable
Prix
Statut
#5728956
1799453-2
2
Appartement
CHF 2'225'000.-
À vendre
#5728956
1799453-2
2
Appartement
4.5
Rez-de-chaussée
CHF 2'225'000.-
À vendre
#5728956
1799453-2
2
Appartement
4.5
Rez-de-chaussée
205 m²
CHF 2'225'000.-
À vendre
#5728956
1799453-2
2
Appartement
4.5
Rez-de-chaussée
205 m²
CHF 2'225'000.-
À vendre
#5728956
792867-5
5
Appartement
-
Réservé
#5728956
792867-5
5
Appartement
4.5
-
-
Réservé
#5728956
792867-5
5
Appartement
4.5
-
240 m²
-
Réservé
#5728956
792867-5
5
Appartement
4.5
-
240 m²
-
Réservé
#5728956
792864-3
3
Appartement
-
Réservé
#5728956
792864-3
3
Appartement
4.5
1er étage
-
Réservé
#5728956
792864-3
3
Appartement
4.5
1er étage
204 m²
-
Réservé
#5728956
792864-3
3
Appartement
4.5
1er étage
204 m²
-
Réservé
#5728956
792865-4
4
Appartement
-
Réservé
#5728956
792865-4
4
Appartement
4.5
1er étage
-
Réservé
#5728956
792865-4
4
Appartement
4.5
1er étage
204 m²
-
Réservé
#5728956
792865-4
4
Appartement
4.5
1er étage
204 m²
-
Réservé
#5728956
1105342-1
1
Appartement
-
Vendu
#5728956
1105342-1
1
Appartement
4.5
Rez-de-chaussée
-
Vendu
#5728956
1105342-1
1
Appartement
4.5
Rez-de-chaussée
205 m²
-
Vendu
#5728956
1105342-1
1
Appartement
4.5
Rez-de-chaussée
205 m²
-
Vendu
Contacter notre agent
Cyril Bieckens
Demande de visite
Appartement à Crans-Montana
Livraison fin 2025
Crans-Montana
Vendu
205 m²
4.5
Descriptions
Caractéristiques
Descriptif
Liste des objets
|
Immeuble
Référence
|
Lot
Type
|
Prix
Statut
|
Immeuble
Référence
|
Lot
Type
|
Pièces
Étage
|
Prix
Statut
|
Immeuble
Référence
|
Lot
|
Type
|
Pièces
|
Étage
|
Surface habitable
|
Prix
|
Statut
|
Immeuble
|
Référence
|
Lot
|
Type
|
Pièces
|
Étage
|
Surface habitable
|
Prix
|
Statut
|
|
#5728956
1799453-2
|
2
Appartement
|
CHF 2'225'000.-
À vendre
|
#5728956
1799453-2
|
2
Appartement
|
4.5
Rez-de-chaussée
|
CHF 2'225'000.-
À vendre
|
#5728956
1799453-2
|
2
|
Appartement
|
4.5
|
Rez-de-chaussée
|
205 m²
|
CHF 2'225'000.-
|
À vendre
|
#5728956
|
1799453-2
|
2
|
Appartement
|
4.5
|
Rez-de-chaussée
|
205 m²
|
CHF 2'225'000.-
|
À vendre
|
|
#5728956
792867-5
|
5
Appartement
|
-
Réservé
|
#5728956
792867-5
|
5
Appartement
|
4.5
-
|
-
Réservé
|
#5728956
792867-5
|
5
|
Appartement
|
4.5
|
-
|
240 m²
|
-
|
Réservé
|
#5728956
|
792867-5
|
5
|
Appartement
|
4.5
|
-
|
240 m²
|
-
|
Réservé
|
|
#5728956
792864-3
|
3
Appartement
|
-
Réservé
|
#5728956
792864-3
|
3
Appartement
|
4.5
1er étage
|
-
Réservé
|
#5728956
792864-3
|
3
|
Appartement
|
4.5
|
1er étage
|
204 m²
|
-
|
Réservé
|
#5728956
|
792864-3
|
3
|
Appartement
|
4.5
|
1er étage
|
204 m²
|
-
|
Réservé
|
|
#5728956
792865-4
|
4
Appartement
|
-
Réservé
|
#5728956
792865-4
|
4
Appartement
|
4.5
1er étage
|
-
Réservé
|
#5728956
792865-4
|
4
|
Appartement
|
4.5
|
1er étage
|
204 m²
|
-
|
Réservé
|
#5728956
|
792865-4
|
4
|
Appartement
|
4.5
|
1er étage
|
204 m²
|
-
|
Réservé
|
|
#5728956
1105342-1
|
1
Appartement
|
-
Vendu
|
#5728956
1105342-1
|
1
Appartement
|
4.5
Rez-de-chaussée
|
-
Vendu
|
#5728956
1105342-1
|
1
|
Appartement
|
4.5
|
Rez-de-chaussée
|
205 m²
|
-
|
Vendu
|
#5728956
|
1105342-1
|
1
|
Appartement
|
4.5
|
Rez-de-chaussée
|
205 m²
|
-
|
Vendu
|

Contacter notre agent
Cyril Bieckens










