En exclusivité Berra Immobilier
Vente sur plans
De concept architectural moderne et avant-gardiste, ce nouveau lotissement saura vous séduire. Nous nous trouvons dans une petite PPE de seulement 7 appartements qui de par leur répartition savent conserver leur indépendance et côté privatif.
Typologies disponibles : 3.5p
Caractéristiques :
- orientation Sud, sud-ouest pour tous les lots
- une paroi antibruit et brise-vue sera installée en bordure de parcelle afin de couper la construction future des nuisances de la route, il n'y aura plus qu'à jouir de la belle vue dans les vignes
- tous les appartement jouissent d'espaces extérieurs généreux : de par leur conception, selon le lot choisi, on trouvera un jardin en terrasse, un balcon ou une terrasse couverte
- grand volume-hauteur sous plafond pour les attiques, charpente en bois naturel plein, fenêtres principales allant jusqu'au toit pour une grande luminosité
- construction traditionnelle dans les règles de l'art, béton armé, isolation périphérique
- afin de respecter le design moderne de l'ensemble, une partie des parois intérieures et extérieures seront en béton apparent peint
- triple vitrage
- baies coulissantes à levage
- stores électriques
- les 3.5p sont tous pourvus d'un économat, possibilité en plus-value d'y installer un WC visiteur (si prévu avant le démarrage du chantier)
- chauffage au sol par PAC
- compteurs séparés
- robinets antigel par rez-de-jardin
- emplacement de colonne de lavage dans chaque appartement
- places extérieures et couvertes en sus du prix de vente, voir dossier, 2 places par lot
- possibilité de mettre une borne recharge pour voiture électrique (sur demande)
- cave privative incluse
- modifications possibles sur demande
- finitions à choix
Distribution des espaces, liste des lots disponibles et plans via dossier sur demande. Pour plus d'informations, nous sommes à votre disposition.
*** TOUS NOS BIENS EN VENTE SUR WWW.BERRA-IMMOBILIER.CH
Votre recherche
Appartement à Conthey
Les Jardins de Colette, Sensine
Conthey
Réservé
~ 93 m²
~ 34 m²
3.5
Descriptions
Caractéristiques
Descriptif
Liste des objets
Immeuble
Référence
Lot
Type
Prix
Statut
Immeuble
Référence
Lot
Type
Pièces
Étage
Prix
Statut
Immeuble
Référence
Lot
Type
Pièces
Étage
Surface habitable
Surface terrain
Exposition
Prix
Statut
Immeuble
Référence
Lot
Type
Pièces
Étage
Surface habitable
Surface terrain
Exposition
Prix
Statut
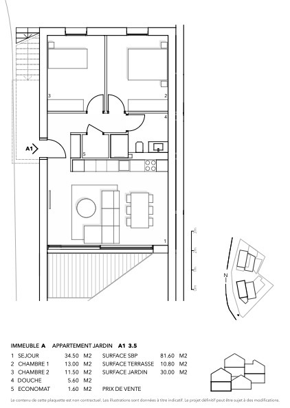
#5729010
A01
A01
Appartement
CHF 560'000.-
À vendre
#5729010
A01
A01
Appartement
3.5
Rez-de-chaussée
CHF 560'000.-
À vendre
#5729010
A01
A01
Appartement
3.5
Rez-de-chaussée
~ 88 m²
-
-
CHF 560'000.-
À vendre
#5729010
A01
A01
Appartement
3.5
Rez-de-chaussée
~ 88 m²
-
-
CHF 560'000.-
À vendre
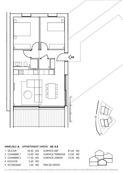
#5729010
A02
A02
Appartement
-
Réservé
#5729010
A02
A02
Appartement
3.5
Rez-de-chaussée
-
Réservé
#5729010
A02
A02
Appartement
3.5
Rez-de-chaussée
~ 93 m²
~ 73 m²
Sud
-
Réservé
#5729010
A02
A02
Appartement
3.5
Rez-de-chaussée
~ 93 m²
~ 73 m²
Sud
-
Réservé
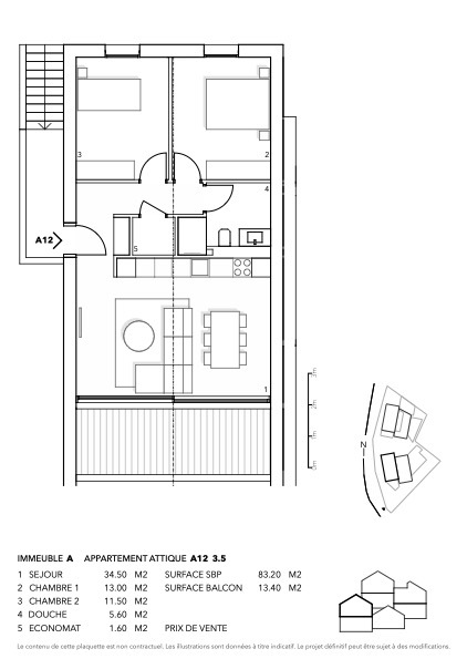
#5729010
A12
A12
Attique
-
Réservé
#5729010
A12
A12
Attique
3.5
Attique
-
Réservé
#5729010
A12
A12
Attique
3.5
Attique
~ 89 m²
-
-
-
Réservé
#5729010
A12
A12
Attique
3.5
Attique
~ 89 m²
-
-
-
Réservé
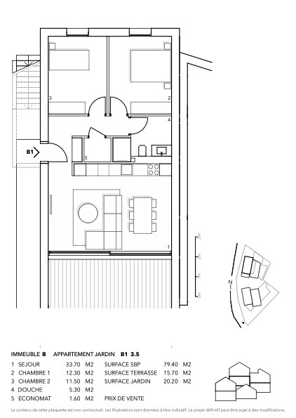
#5729010
B01
B01
Appartement
CHF 565'000.-
À vendre
#5729010
B01
B01
Appartement
3.5
Rez-de-chaussée
CHF 565'000.-
À vendre
#5729010
B01
B01
Appartement
3.5
Rez-de-chaussée
~ 87 m²
-
Sud
CHF 565'000.-
À vendre
#5729010
B01
B01
Appartement
3.5
Rez-de-chaussée
~ 87 m²
-
Sud
CHF 565'000.-
À vendre
#5729010
B02
B02
Appartement
-
Réservé
#5729010
B02
B02
Appartement
3.5
Rez-de-chaussée
-
Réservé
#5729010
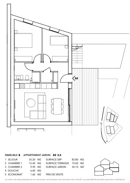
B02
B02
Appartement
3.5
Rez-de-chaussée
~ 93 m²
~ 34 m²
-
-
Réservé
#5729010
B02
B02
Appartement
3.5
Rez-de-chaussée
~ 93 m²
~ 34 m²
-
-
Réservé
#5729010
B12
B12
Appartement
-
Réservé
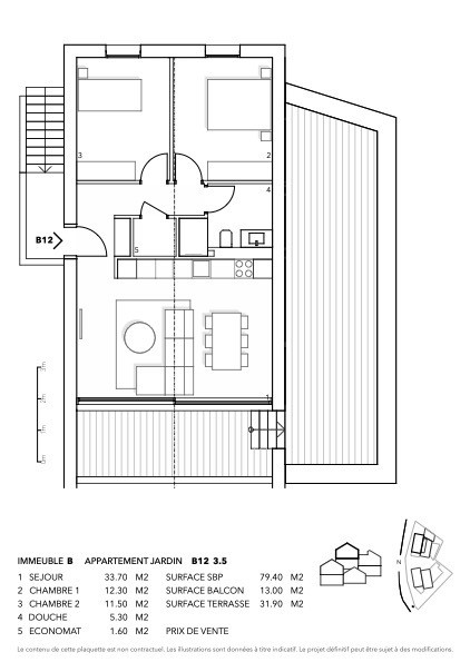
#5729010
B12
B12
Appartement
3.5
Attique
-
Réservé
#5729010
B12
B12
Appartement
3.5
Attique
~ 96 m²
-
-
-
Réservé
#5729010
B12
B12
Appartement
3.5
Attique
~ 96 m²
-
-
-
Réservé
#5729010
B22
B22
Attique
CHF 585'000.-
À vendre
#5729010
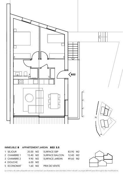
B22
B22
Attique
3.5
Attique
CHF 585'000.-
À vendre
#5729010
B22
B22
Attique
3.5
Attique
~ 95 m²
~ 49 m²
-
CHF 585'000.-
À vendre
#5729010
B22
B22
Attique
3.5
Attique
~ 95 m²
~ 49 m²
-
CHF 585'000.-
À vendre
Contacter notre agent
Christophe Berdot
Demande de visite
Appartement à Conthey
Les Jardins de Colette, Sensine
Conthey
Réservé
~ 93 m²
~ 34 m²
3.5
Descriptions
Caractéristiques
Descriptif
Liste des objets
|
Immeuble
Référence
|
Lot
Type
|
Prix
Statut
|
Immeuble
Référence
|
Lot
Type
|
Pièces
Étage
|
Prix
Statut
|
Immeuble
Référence
|
Lot
Type
|
Pièces
Étage
|
Surface habitable
|
Surface terrain
|
Exposition
|
Prix
|
Statut
|
Immeuble
|
Référence
|
Lot
|
Type
|
Pièces
|
Étage
|
Surface habitable
|
Surface terrain
|
Exposition
|
Prix
|
Statut
|
|
#5729010
A01
|
A01
Appartement
|
CHF 560'000.-
À vendre
|
#5729010
A01
|
A01
Appartement
|
3.5
Rez-de-chaussée
|
CHF 560'000.-
À vendre
|
#5729010
A01
|
A01
Appartement
|
3.5
Rez-de-chaussée
|
~ 88 m²
|
-
|
-
|
CHF 560'000.-
|
À vendre
|
#5729010
|
A01
|
A01
|
Appartement
|
3.5
|
Rez-de-chaussée
|
~ 88 m²
|
-
|
-
|
CHF 560'000.-
|
À vendre
|
|
#5729010
A02
|
A02
Appartement
|
-
Réservé
|
#5729010
A02
|
A02
Appartement
|
3.5
Rez-de-chaussée
|
-
Réservé
|
#5729010
A02
|
A02
Appartement
|
3.5
Rez-de-chaussée
|
~ 93 m²
|
~ 73 m²
|
Sud
|
-
|
Réservé
|
#5729010
|
A02
|
A02
|
Appartement
|
3.5
|
Rez-de-chaussée
|
~ 93 m²
|
~ 73 m²
|
Sud
|
-
|
Réservé
|
|
#5729010
A12
|
A12
Attique
|
-
Réservé
|
#5729010
A12
|
A12
Attique
|
3.5
Attique
|
-
Réservé
|
#5729010
A12
|
A12
Attique
|
3.5
Attique
|
~ 89 m²
|
-
|
-
|
-
|
Réservé
|
#5729010
|
A12
|
A12
|
Attique
|
3.5
|
Attique
|
~ 89 m²
|
-
|
-
|
-
|
Réservé
|
|
#5729010
B01
|
B01
Appartement
|
CHF 565'000.-
À vendre
|
#5729010
B01
|
B01
Appartement
|
3.5
Rez-de-chaussée
|
CHF 565'000.-
À vendre
|
#5729010
B01
|
B01
Appartement
|
3.5
Rez-de-chaussée
|
~ 87 m²
|
-
|
Sud
|
CHF 565'000.-
|
À vendre
|
#5729010
|
B01
|
B01
|
Appartement
|
3.5
|
Rez-de-chaussée
|
~ 87 m²
|
-
|
Sud
|
CHF 565'000.-
|
À vendre
|
|
#5729010
B02
|
B02
Appartement
|
-
Réservé
|
#5729010
B02
|
B02
Appartement
|
3.5
Rez-de-chaussée
|
-
Réservé
|
#5729010
B02
|
B02
Appartement
|
3.5
Rez-de-chaussée
|
~ 93 m²
|
~ 34 m²
|
-
|
-
|
Réservé
|
#5729010
|
B02
|
B02
|
Appartement
|
3.5
|
Rez-de-chaussée
|
~ 93 m²
|
~ 34 m²
|
-
|
-
|
Réservé
|
|
#5729010
B12
|
B12
Appartement
|
-
Réservé
|
#5729010
B12
|
B12
Appartement
|
3.5
Attique
|
-
Réservé
|
#5729010
B12
|
B12
Appartement
|
3.5
Attique
|
~ 96 m²
|
-
|
-
|
-
|
Réservé
|
#5729010
|
B12
|
B12
|
Appartement
|
3.5
|
Attique
|
~ 96 m²
|
-
|
-
|
-
|
Réservé
|
|
#5729010
B22
|
B22
Attique
|
CHF 585'000.-
À vendre
|
#5729010
B22
|
B22
Attique
|
3.5
Attique
|
CHF 585'000.-
À vendre
|
#5729010
B22
|
B22
Attique
|
3.5
Attique
|
~ 95 m²
|
~ 49 m²
|
-
|
CHF 585'000.-
|
À vendre
|
#5729010
|
B22
|
B22
|
Attique
|
3.5
|
Attique
|
~ 95 m²
|
~ 49 m²
|
-
|
CHF 585'000.-
|
À vendre
|

Contacter notre agent
Christophe Berdot






















